平成不動産・ロゴ
平成不動産・ロゴ
岩手県盛岡市盛岡駅前通16番7号
TEL:019-652-5300
Mail:office@heisei-f.net

パレ日影門

パレ 日影門

物件詳細情報

物件名: パレ日影門 703号室
所在地: 岩手県盛岡市中央通1丁目6番30号
交通: 盛岡駅徒歩13分
賃料: 65,000円
管理費等:  0円
敷金: 家賃3ヶ月分
礼金: 家賃1ヶ月分
築年: 昭和55年10月
建物構造: 鉄筋コンクリート造
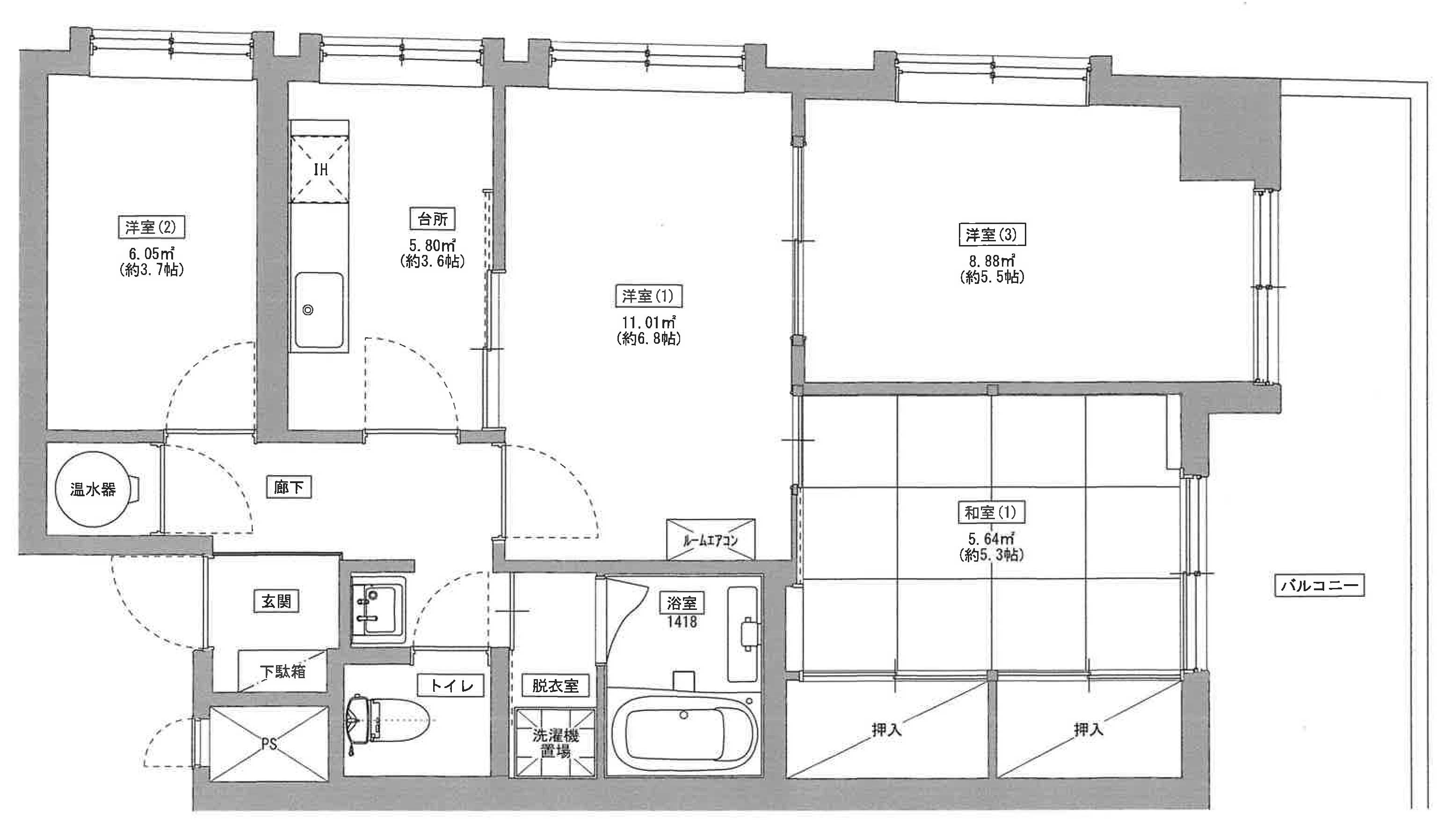
間取り: 3DK
専有面積: 約64.42㎡
条件: 賃貸保証加入・火災保険加入
入居時期:
情報掲載日:


玄関 お部屋 ロフト クローゼット 玄関 玄関から部屋を見る キッチン

間取り


マンションmio 間取り

設備等

バス・トイレ別
 
エアコン
備付
ダイニング:
フローリング
洋室:
カーペット
和室:
IHコンロ
備付
システムキッチン
備付
 
 
 
 

 

マップ